KIPiA
Калькуляторы
Калькулятор термопар
Калькулятор термосопротивлений
Калькулятор ПМТ
Калькулятор шкала-сигнал
Калькулятор сопротивления проводника
Калькулятор NTC
Калькулятор карбонового греющего кабеля
Калькулятор цветовой маркировки резисторов
КИП
Все приборы
По наименованию
По заводу-изготовителю
По технологическому параметру
Заметки
Документация
Другое
Главная страница
Не указан
Г3-113
g3113_kipia_xyz_5456
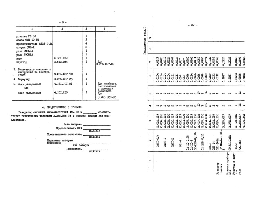
Г3-113 Формуляр 3.265.027 ФО 1987 г. - просмотр
Вернуться к странице файла
Скачать текущую страницу (png)
Страница 7 из 18
Назад
6
7
8
Далее