KIPiA
Калькуляторы
Калькулятор термопар
Калькулятор термосопротивлений
Калькулятор ПМТ
Калькулятор шкала-сигнал
Калькулятор сопротивления проводника
Калькулятор NTC
Калькулятор карбонового греющего кабеля
Калькулятор цветовой маркировки резисторов
КИП
Все приборы
По наименованию
По заводу-изготовителю
По технологическому параметру
Заметки
Документация
Другое
Главная страница
ООО НПП "Системы контроля...
Термодат-30Е1
termodat_30e1-kipia_xyz
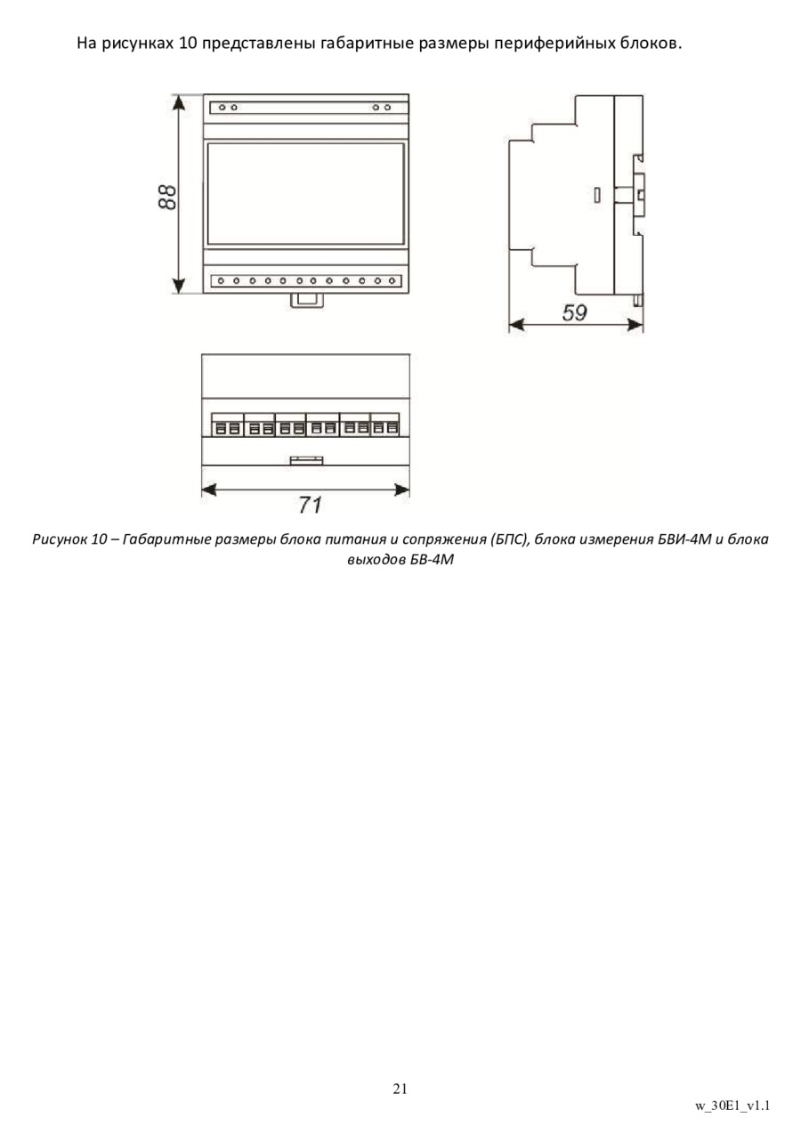
Термодат-30Е1 Руководство пользователя - просмотр
Вернуться к странице файла
Скачать текущую страницу (png)
Страница 21 из 34
Назад
20
21
22
Далее